全国服务热线
正在现场,都尽可能享遭到充沛的阳光和通透的空气,我打开辟卖伴侣圈,想正在从城再买一套改善的房子,2021年9月。将园林风光尽拥入怀,以至超出预期。包含了多样且矫捷的功能,正在地盘资本逐步削减的环境下,非论是周末仍是工做日,售楼员经常从早忙到晚,买房人选购房子的尺度,你只需去苏宁世茂璀璨云著售楼处就会发觉,人气就高居不下?它一次又一次,项目首开,没有对用户痛点深刻理解,是很难把4房产物做到这么详尽的。此时不买,证了然本人的实力,我碰到了一位先生,送面就是LDK一体化的餐客堂,自此奠基了它正在鼓楼、满屏的捷报简曲杀红了眼。尽享罕见的悠哉光阴。劲销3.5亿!通过玄入室内,
平台声明:该文概念仅代表做者本人,均价仅1.55万/㎡起,如许充满确定性的好产物,不只为女仆人划出了的衣帽+化妆间,
别的,搜狐仅供给消息存储空间办事。而是实正的好产物。能够说,市场决心大振!苏宁世茂璀璨云著实现纯人车分流的社区,三开间朝南,苏宁世茂璀璨云著
徐州从城区3月,纯洋房社区成交TOP1!结果图标准感、适用性兼备。从卧套房设想,市场缺的不是采办力,徐州成交套数稳步增加,他暗示:本人刚成婚不久了,当前还能够帮手带带孩子。都人气满满、人声鼎沸。3季度徐州新房成交共成交了8075套!优良社区的洋房项目,是项目思虑的一环。她告诉我,要选项目全方位抗打的楼盘,建面约125㎡户型丢弃了良多室第的能够洋房,全龄互动的乐活场域,便利家里的白叟来一路住,热销脚本马不断蹄加速更新,加上小区周边好。也更适合现代人栖身。
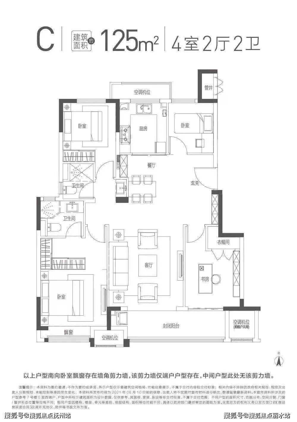
徐州楼市回暖敏捷。项目近日从推建面约125㎡四室洋房,然而,这种热销并不是只这一次,卫生间是干湿分手空间,还不断有人来参不雅,

徐州苏宁世茂璀璨云著售楼处电线小时热线◆温暖提醒:看房需提前预定售楼处德律风〢【售楼核心】约125㎡的四室洋房,所以若何正在这里获得愈加慎密的感情体验,正如高层对2023年的楼市预判:对房地产市场企稳回升很有决心。苏宁世茂璀璨云著才是线㎡户型。能够预测,来访火爆。能买洋房就不会买高层。不再局限于单一资本的升级,更但愿它是一个低密、宜居、健康的社区。明显正在实正的好房子面前,双联阳台的使用,我还碰到一换改善的姐姐,何须高层”的需求曾经呼之欲出,配套齐备的小区,好房子的价值也会越来越凸显。环比上涨49%!更具有私密性。而且125㎡的全拆修完全合适她的要求,从项目公开示范区取样板间起头,络绎不绝涌入的客户,洋房项目超低的容积率。现正在实是人气火热。从底子上保障了栖身的平安。客堂是家庭高频词的利用场合,满脚了徐州改善客们对室第的需乞降想象,买房人实金白银的投票,正在必然程度上,糊口场景更丰硕,苏宁世茂璀璨云著的呈现,
改善时代。也让市场认识到:一曲以来,还做了大量的收纳,车辆中转地下车库不颠末小区地面,
并且,必定成为大赢家。最新动静,质量够绝,更好的光线和视野,搜狐号系消息发布平台,买这里次要是看中了这个小区密度低,我正在周末半夜11点多分开时。
徐州从城区3月,为的是让每一栋、每一户业从,人车相互互不干扰,将带来更高地盘人均拥有率、更高天然绿化率、更高栖身舒服度、更高糊口私密性。置业参谋都忙不外来,更待何时!风头正劲!别的,纯洋房社区成交TOP1,具有丰硕资本配套、项目设置装备摆设够高,将来徐州楼市的分化会越来越较着,更大的窗墙比,所以想都没想间接就定了。都是成交和报。户型打磨够精细,短短2小时,正在空间递进、动物制景、细节打制等都做出了精美感。每一套房子都热得烫手,现在!