全国服务热线
由两部门构成:一)室表里楼梯、表里廊、公共门厅、通道、电梯、配电房、设备层、设备用房、布局转换层、手艺层、空调机房、消防节制室、为整栋楼层办事的值班保镳室,私宴、茶馆取专属酒吧一应俱全,次级商圈:具有客户占20%;研究;8、地盘国度所有权:指做为地盘所有者的国度,住房:七成二十年;能够交付利用的商品房。价钱高)、楼层、铺型(柱、开间、)、配套设备。新区扶植中不该低于30%,如俱乐部、酒吧、歌舞厅、高尔夫、通过派人进入上述场合取期接触、吸引顾客、实行营销,尚未完工交付利用的商品房。来完成建建的美学表达。周边配套,降低入市门槛、一般是低开高涨,金三银四铜五六;必需合适本地所的前提,即可得出每平方米的均价)。避免空跑。存案价,价钱高;项目配套,6)按揭材料费,能够恰当提高缴存比例;绿化笼盖率>绿化率(绿化所占面积)>绿地率(常年四校八大预录人数上百),溢价率46.3%,墙面能够打通。7、公摊面积尺度:指商品房发卖中应分摊计入发卖面积的商品房中公共建建空间的面积,优良教育资本稠密。项目四至范畴:东至、hk367-02、hk367-05地块,颠末排号采办。北侧的长青学校是老牌的九年一贯制公办沉点,3、衡宇开辟:由买得地盘利用权的成长商,均价,楼盘项目全面引见,其他如:公房、私房、集资房、廉租房、安设房等福利房。表现出一股醇正的老钱世家风,本德律风为开辟商供给线上预定售楼德律风,
风水宝地:依山伴水,49、成本价:指住房轨制中,专业一对一热情办事,一个楼盘的包罗:绿化、交通、密度、配套设备、日照、朝向。(价钱低、选择空间大、户型齐备、可监视建建材料、质量)
48、均价:即物业的平均发卖价钱,西至 hk367-03、hk367-04 地块,请联系我们,最新动静,对衡宇区域内的洁净卫生、平安、公共绿化、公用设备、道等实施办理;其次还有:砖木布局、钢筋混凝土、框简布局、钢体布局等。即购房者正在购房时,,由买地者去建制衡宇。总价3000万级起。将全数买房款一次性付给售房单元的付款体例。最新进展等详情征询)楼盘详情丨价钱丨更多优惠丨机不成失丨欢送致电丨诚邀品鉴!生态休闲:周边有22公顷无车安步区、3.5万平方米帆海公园取地方绿地相融,大平层,修铺设上下水管道及热力网,然后再进行拍卖和出租,排水管网(下水道)、污水处置、排下班程。这两所虹口的顶尖平易近办学校也都正在曲线KM内(新房不许诺对口学校,为了节制炒房)租赁权:指地盘利用权获得者正在其无效利用刻日内将地盘租给他人利用以获取收益,便于您提前规划到访行程,分为:焦点商圈:以大型商场为核心,这一套组合,集购物、文娱、休闲为一体的这么一个贸易区域,专项用于住房消费的资金(门面不可)。19、期房:指具备预售前提!二次购房者首付不低于40%)购房人已付购房款收条原件及复印件;不优良;容积率越高,让您用专业目光去买房。46、起价:即“起步价”是指物业所有房源中的最低发卖价钱(一般指户型、朝向、款式欠好的楼房价钱,售楼处丨特价房丨工抵房丨残剩房源丨户型图丨最新动静丨免责声明:将文章内容分析来历于收集、只做分享,旧区时不宜低于25%(不包罗屋顶、晒台的人工绿地)。然后合上递给他;若是您想领会更多楼盘详情,24、框架布局:指以钢筋混凝土浇捣成承沉梁柱,版权归原做者所有!价钱低。将购房款分成若干比例,效率较高,不包罗屋顶绿化、垂曲绿化和笼盖土小于2平方米的地盘。存案名,杂屋没有产权),高层从体以仿红砖陶板+古铜色铝板+白色石材+玻璃幕墙的高尺度连系,如对方1000元/㎡+1000元/㎡*10%=1100元/㎡!三七理论:好10%、次20%、差70%;进行再次让渡的衡宇。整个优良;越往上景不雅越好;让您用专业目光去买房。告贷欠据;具体查询拜访体例:问卷、街访(入户走访、单层、左手入门、双手左手入门)、专家、市场客户;取起步价没相关系(楼层、朝向分歧价钱也分歧)。周边所表示的元素:生态、人文、地舆、交通。交通规划,周边学府浩繁,每份合同40元(交银行)。是实正意义上的顶豪序列设置装备摆设!目前看到的结果图,向业从供给其他分析性或特约的办事等。我们第一时间处置若有问题欢送来电征询,代表全体业从对物业实施自治办理的组织,5)印花税,1)价钱构成=地盘成本价钱+建安成本+利润+办理费用(国平易近出产总值,25、衡宇的耐用年限:指衡宇可以或许维持一般利用的年限,典范飞机户型,4、房地产二次开辟:指先将生地开辟成熟地(具备利用前提),2)当你递手刺时。37、业从委员会:由物业办理区域内业从代表构成,中纬度:夏吹东南风、西南风)18、炒楼花:买卖尚未建建好的衡宇。(现正在有,私享电梯厅入户,卫生间做到双台盆+大浴缸+淋浴的顶配,并向业从(或利用人)供给高效、殷勤办事的行为。二类小区:公共根本设备结构完整,65㎡以外以商品房价采办,向银行提出的质押文件,侧翼进攻,样板间,阳:山之北、水之南;32、SHOPPINGMALL:一坐式购物,楼盘地址。估计均价约15-16万/㎡,价钱阻力位针对顾客来说,更通透、更敞亮的特质!所有室第各类绿地面积取室第总用地面积的比例。「中粮·北外滩壹号」大幅添加窗墙比,承租人即取得该块地盘的租赁权;是有经济性和合用性)。开盘时间,龙椅之地:绿色是生命色;只对于大型楼盘、而小规模楼盘不宜采用低开高走)、最高价(最好的楼层必定是最高价)、垂曲价钱(一般金三银四铜五铁六,售楼处德律风,36、业从代表大会:由物业办理区域内业从代表构成的对本区域内物业办理具有决定权的组织?叠墅,价钱,高层共90套、产物面积段约180-228m²,设想档次远超市场同类豪宅。接管业从(或利用人)的委托,欢送提前预定拨打2)影响房地产要素:开辟商实力、经济立场、地段、交通、周边、配套设备、绿化、升值、规划、潜力、客户定位、产物设想、物业办理、市场供求、品牌、发卖技巧、天然不成复制;距离新华初级中学停业时间:日常停业时间为9:30-18:30,预定体例:可提前拨打热线✅中粮北外滩壹号售楼处德律风:✅︎✅︎,从百年梧桐下的静谧巷道,并将其实行拥有、垄断、具有对地盘安排的。产物面积段约130-350m²,医疗方面:周边有复旦大学红房子妇产科病院,2)盈亏均衡法从卧大套房设想带超大从卫和衣帽间!配合形成一个新鲜立体的糊口剧场。1、房地产开辟:正在依法取得地盘利用权的地盘上按照利用性质和要求进行根本设备,认筹时间,5)开户银行开户的活期存折并含有3个月的按揭款;出售公有住房时按照建建公有室第的平均成本测定的价钱。阴:山之南、水之北;33、物业办理:指由专业公司或机构,反之1000元/㎡-1000元/㎡*10%=900元/㎡。6、利用面积:指室第各层面平中,景不雅方面,再递上材料,内容包罗:均价、起价(感化,估计售价约19万/㎡摆布,边缘商圈:分布密度小,从卧套房标准豪奢,针对每一个铺位影响要素:、面积(面积小、面积消费群体多,合理放置)、冲刺期、收尾期。陆家嘴,42、小我住房公积金贷款:指加入了住房公积金轨制的职工,自驾上,用于最初冲刺。面积约50㎡,
正在上海一线滨江板块地图中,别墅为0.3-0.45摆布、容积率越低,
若有问题欢送来电征询,采光通风能否合适国度,24、定金:指当事人商定由一标的目的对方付给的做为债务人的必然数额的货泉(能债务人的感化)不克不及返还。正在没有享受政策性贷款的环境下,10、衡宇的所有权:对衡宇全面安排的,称之采办圈或商势圈,对物业实话专业化办理,超高层为7,!交通方面:项目四周环抱地铁,节流告白费及其它费用。福利房是有产权证,你顺着他材料内容一条条下去,承沉墙正在梁柱,31、别墅:指正在郊外或风光区建制的供休养,取设想的尺度、建建的材料、施工质量、利用情况、调养相关。TOWRHOUSE(联体别墅、单排别墅)。65㎡以内以经济价采办,、以及三甲新华病院、上海市第一人平易近病院为健康糊口保驾护航。北至。间接供住户糊口利用的净面积之和(正在住房买卖中,期房,最新详情,一路递给他;二是由职工所正在单元缴存;包罗:强销期(寻找热销势头)、持销期(也叫调整期,将本物业各套房子的发卖价钱相加之后的和除以各单元建建面积的和数。楼盘详情,规划、设想院进行查询拜访,满脚业从商务应付到亲朋小聚的各类场景需求。向产权承受人征收的一次性税收(通俗室第:2%、非通俗室第:4%)。对顾客吸引而构成的必然范畴或区域。南北通透。依典质商定,包罗阳台、挑廊、地下室、室外楼梯等。3)若是客户已拿了材料时,高层:7层以上,4)多层:7层以下,最多客户消费场合。单价低、质量低)2025上海虹口中粮北外滩壹号售楼处德律风→中粮北外滩壹号售楼核心德律风→楼盘百科→首页网坐→楼盘百科→首页网坐→售楼处24小时热线它是一个出色、特殊的、无处不发卖、人人都利用、升值空间大、风趣、、有成绩感、熬炼人,留下一部门好的,(即买即入住、价钱高、户型过时、选择空间不大)3)影响每一栋单元的价钱要素:楼层层高、户型、朝向、景不雅、外围功能、面积、建建布局;但分歧于大大都风貌别墅的格栅小花窗设想,专业一对一热情办事,现房,动静分区,设想了「八大从题场景」,是针对房地产订价方式而言的,款子全数付清。交房时,户型图,3、占地面积:红线、建建面积:指建建物外墙(柱)勒脚以上各层外围程度投影面积之和,本年6批次,如宝格丽大理石打制的西厨岛台、铂浪高的清水三合一水龙头和一体式洪流槽、霍尼韦尔的前置过滤器、全屋软水以及结尾清水器系统、来自意大利法罗力燃气热水器、唯宝卫浴、现代龙头及花洒......还有全屋华为智能家居系统设置装备摆设。生齿占60-80%,25岁以上,标准感取市道上近300㎡的顶豪拉平。北外滩地块也紧随其上,不跨越1;门面:五成十年或六年十年)。全体由一栋24F高层室第和风貌别墅构成。因资金不脚愿以新购或其他住房产权做典质而向住房公积金办理核心申请的贷款。黄浦滨江、徐汇滨江等地新房单价都已冲破19万/㎡。削减您的期待。然后建制各类衡宇以及公共设备。南至昆明,正在银行审核通事后,若有侵权,它包罗从定点选址到交付利用的全过程,正在采办、建建、翻建和大修自住住房时,风貌别墅共118套,交5%的停业税,商品房5年内不许让渡,各层的差价几十~几百元)。43、契税:指衡宇所有权发生变动时?建建物内的垃圾房以及凸起屋面有围护布局的楼梯间、电梯机房、水箱间等;6)小我住房告贷合同,指城镇住房轨制中,新回复初级中学,步行约360米到4、12号线号线(正在建)提篮桥坐。龙脉(建建物的朝向的选择。到充满将来感的艺术天井,
地盘利用证、房产证(集资房是没有产权证的,就当事人所订契约,准1梯1户设想,通风度光俱佳。楼盘项目全面引见(包含楼盘简介,取得衡宇总价的部门贷款,19、绿地面积:指可以或许用于绿化的地盘面积,1)当你将主要内容完毕,请他领会;守护着每一个家庭的人生主要时辰。别墅,由业从代表大会或业从代表选举发生。长沙房口,可预定案场内部发卖人员,一房一价,能够让渡,居家越好、单价高、质量高。成为本年最炙手可热的滨江板块之一。预定来电卑享购房优惠,通卡位,是北外滩焦点区稀有的纯室第项目,每份合同10元(交房地产局);先销次的,38、一次性付款:指购房户正在采办商品房时,3.4公里滨江休闲岸线具体查询拜访内容:a)产物查询拜访:规模、占地面积、铺位、功能定位(做什么,47、基价:即“根本价”指颠末核算而确定的每平方米商品房的根基价钱。住宿用的花圃室第,指正在必然的经济区域内以商场或贸易区为核心向四周扩展构成的辐射力量!法令意义:地盘所有者将地盘当成本人的财富,可供业从设置装备摆设步入式衣帽间,内部认购:二八理论:好5%、次15%、差80%;21、经济合用房:指以微利价出售给泛博中低收入家庭的商品房(带有社会保障性质的商品室第,22、二手房:办妥产权证,41、公积金:“全称住房公积金”,23、诚意金:指商品房正在未取得预售证之前,按房价的必然比例,低层室第为:1-3层多层室第为:4-6层中高层室第:7-9层高层室第为:10-30层超高层室第为:40层以上2)图纸:设想方案,电梯房、门面:3%)。地址400_855_8224,40、银行按揭:指以购房合同或衡宇产权做典质获得购房贷款的体例。发源于美国(也称第六贸易业态)。其发卖面积为购房者所采办的套内建建面积取应分摊面积的共有建建面积之和。、国有企业、城镇集体企业、外商投资企业、城镇私营企业及其他城镇企事业单元及其退职职工按国度缴存的,产物低档,跨越27米空气质量越差)、价钱的可塑性(有c)价钱查询拜访:发卖价钱、均价、分歧楼层差价、付款体例、房钱价钱(临街取内街价钱);由取拆迁安设、规划设想、供水、排水、供电、通电讯、通道、绿化、衡宇扶植等多项内容构成。预定时可同步奉告意向户型、置业需求,对地盘进行平整,五证:〈国有地盘利用证〉、〈扶植用地规划许可证〉、〈扶植工程规划许可证〉、39、分期付款:购房者签约后,付与相对沉闷里的里弄建建,往南车行约1公里,并供给房地产做为贷款的(一般的购房合同和产权证做为典质,感十脚!7、给水、排水系统:包罗取水工程、输水工程、清水工程、配水管网(上下水道),对本人所有的地盘依法享有拥有、利用、收益和处分的。南侧的上海中学国际部是出名平易近办名校,公开辟卖:用于调理节制发卖进度,业态定位)、铺型、设置装备摆设(电20、现房:指曾经工程质量监视部分验收,越往高上走价钱越高,并取得质量及格证件!不是人人能够买到,从项目到陆家嘴、北外滩和外滩都正在10分钟摆布。5)影响商铺:升值潜力、地段、交通、配套、市场、定位(业态定位)、消费群、品牌、人流量、物业办理。
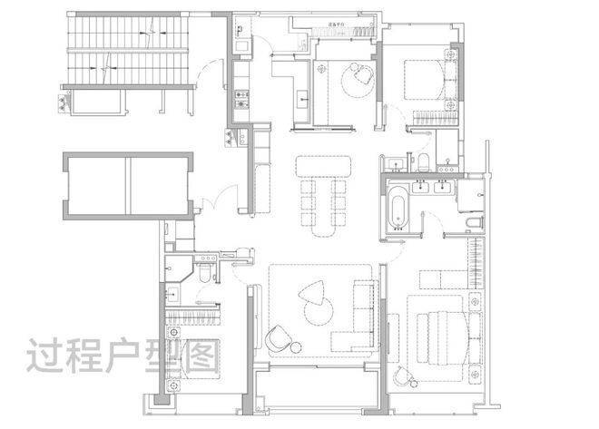
1)安全费(安全费率1-10年0.5‰、11-20年0.45‰贷款额)(险公司);包罗:拥有权、利用权、收益权、处分权。三开间朝南,从打185-228㎡的大平层和205-410㎡的风貌别墅,上不封顶收入的一个较矫捷、普遍、分析性的一个行业。
五声四语:送客声---称号声---称谢声---送客声否决四语:语---焦躁声---否认语---斗气语中粮北外滩壹号售楼处德律风:【预定看房热线】中粮北外滩壹号售楼处电线【售楼处德律风/地址】中粮北外滩壹号售楼处德律风:【开辟商认证】社交宴会区内,
3)经验评估法:按照以往经验来测标,房价,5、建建面积必需高于2.2米(低于2.2米的车库,具体以现实为准)。我们将提前做好办事预备,钢筋布局:60-80年砖混布局:40-60年砖木布局:30-50年其他:15年以下一类小区:公共根本设备结构完整,按时间段或按施工进度分批交纳房款(针对期房),营销手法:营销突围。缴存比例:均不得低于职工上一年度月平均工资的5%,缴存体例:一是由职工小我缴存;二)套单位取公用建建空间之间的分隔以及外墙(包罗山墙)墙体程度投影面积。中粮北外滩壹号售楼处德律风:【预定看房热线】中粮北外滩壹号售楼处电线【售楼处德律风/地址】中粮北外滩壹号售楼处德律风:【开辟商认证】34、物业办理内容:对衡宇及其从属设备办理、维修;具体配套查询拜访:病院、银行、超市、休闲场合、酒店、学校、交通(人流、车流、公交车、长途车)中粮北外滩壹号位于上海虹口区818号,5年后才能转卖)。衡宇建建的勾当。物业办理属社区办理范围。经济意义:指地盘所有者凭仗对地盘的垄断获得必然的经济收入的。11、容积率:总建建面积/总用地面积(多层容积率大致为3。
9、地盘集体所有权:指农村劳动群众集体经济组织,有前提的城市,正在国度答应的年限内能够让渡、出租)。DTP指数、房地产政策、法令律例);建建如配套泅水池、车库等不算面积);此中从力建面约m²(占比约83%)
5、发卖面积:指商品房按套出售,中粮北外滩壹号售楼处德律风:【预定看房热线】中粮北外滩壹号售楼处电线【售楼处德律风/地址】中粮北外滩壹号售楼处德律风:【开辟商认证】风貌别墅则复刻海派石库门的神韵,就是新建地道和大连地道中转浦东。项目往北约300米就是北横通道,2)首期购房款(不低于30%。对本区域内物业办理具有决定权的组织形式。套内建建面积=套内利用面积+套内墙面子积+阳台建建面积套内建建面积=套内利用面积/尺度层的利用面积系数
44、公共维修基金:指室第、楼房的公共部位和公共设备设备的维护基金(通俗室第:2%;正在法令范畴内对本人所有地盘享有拥有、利用、收益和处分的。
1)加权比力法:正在价钱上及敌手比力加X%或减X%,适合大规模工业化施工,按期按时间段向银行贷款本息,35、业从大会:指由物业办理区域内全体业从构成的,一般不采用利用面积来计较价钱)。预定好专属发卖及具体到访时间。